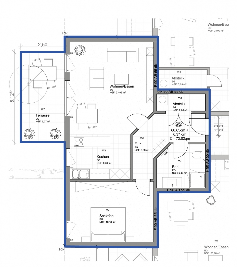
Residenz Am Park Wohnung 2 (Windeck - Dattenfeld)

Residenz Am Park Wohnung 2 (Windeck - Dattenfeld)
Zu jeder Wohnung gehört ein Keller. Wasch- und Trockenmöglichkeiten gibt es sowohl in jeder Wohnung als auch in der gemeinsamen Waschküche im Untergeschoss.

Die Balkone sind immer doppelt so groß wie in den Berechnungen und Zeichnungen angegeben.

Ein Tiefgaragen-Platz kann für 15.000,- € erworben werden.
Ein Stellplatz im Freien kann für 3.600,- € gekauft werden.